Nabízíme Vám byt o dispozici 2+1 a celkové velikosti 53 m2 v 6. patře činžovního domu ve Vršovicích, který zahrnuje dva neprůchozí pokoje a kuchyň. Byt je připraven na rekonstrukcí. Nyní je byt vystěhován a čistě bíle vymalován. Zájemce si ho tak může upravit přesně podle svých představ, například tak, jak je ukázán na přiložených vizualizacích, které jsou vytvořeny přesně na rozměry a dispozici nabízeného bytu.
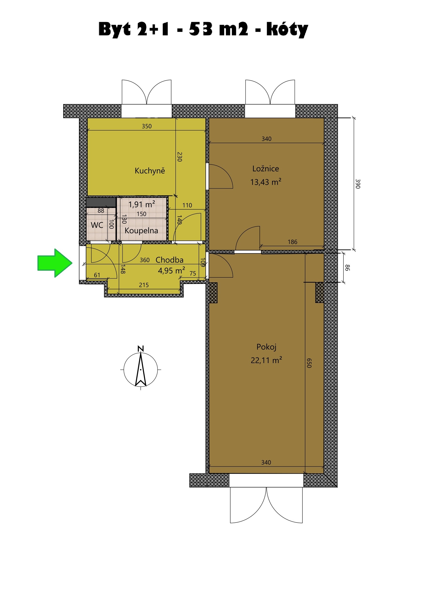
Jednotka nabízí prostor pro kuchyň o velikosti 10 m2 a ložnici o ploše 13 m2. Obě místnosti jsou orientovány na sever do klidného vnitrobloku, což zajišťuje maximální soukromí a ticho. Dominantou bytu je prostorný obývací pokoj o velikosti 22 m2, který nabízí dostatek místa pro odpočinek i společné chvíle s rodinou. Na oknech jsou elektrické venkovní rolety. Na podleze v pokojích jsou pěkné původní dřevěné parkety. Koupelna se sprchovým koutem je po rekonstrukci a toaleta je samostatná. K bytu patří sklepní kóje.
V domě proběhla rekonstrukce vertikálních svodů v roce 2005, hlavní plynové rozvody jsou z roku 2007. Výtah z roku 2009. Okna byla měněna v domě i bytě ve 2 fázích. Severní část v roce 2012 a jižní část v roce 2020. Elektrické rozvody v domě byly měněny v roce 2021. Rozvod rychlého optického internetu v domě je od roku 2025.
Byt se nachází ve oblíbené lokalitě s bohatou občanskou vybaveností. V blízkosti najdete oblíbený park Grébovka, který je ideální na procházky i sportovní aktivity. Jen pár minut chůze od bytu se nachází obchodní centrum Eden, a v okolí najdete mateřské i základní školy, obchody, kavárny a restaurace. Skvělé sportovní vyžití nabízí areál Pražské Slávie a bazén. Dopravní spojení do centra města je vynikající, ať už využijete MHD nebo vlastní dopravu.
Tento byt je ideální pro ty, kteří hledají klidné bydlení s možností realizovat své nápady a přizpůsobit si prostor svým potřebám. Neváhejte a domluvte si prohlídku ještě dnes.


7.499.000,- Kč
tj.
cca <= 141.500,- Kč / m2
V realitách jsem od roku 2013. Předtím jsem pracoval 14 let jako investiční makléř v největší nebankovní investiční společnosti v Praze s klientelou z celého světa.